

Download PDF Below

Ground Floor Includes –
| Stairs Type | U-Type (Internal) |
| Parking | For Car or Bike |
| Drawing Room | 1 |
| Foyer | 1 |
| Pooja room | 1 |
| Kitchen | 1 |
| Wet Kitchen | 1 |
| Store | 1 |
| Utility | 1 |
| Toilet | 1 |

Download PDF Below

First Floor Includes –
| Stairs Type | U-Type (Internal) |
| Family Lounge | 1 |
| Bedroom | 3 |
| Toilet | 2 |

Download PDF Below

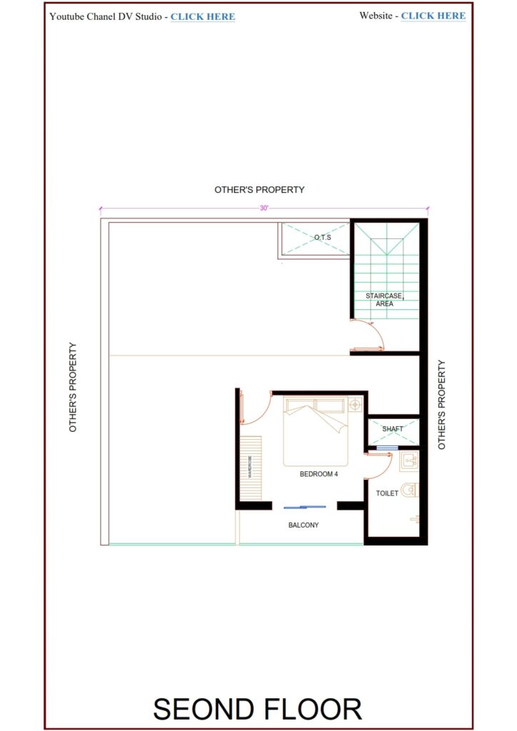
Second Floor Includes –
| Stairs Type | U-Type |
| Bedroom | 1 |
| Toilet | 1 |

Download the PDF for the Floor Plan of 30X30 House Plan Option 9 – CLICK HERE
Full Video Link – CLICK HERE

