In this, you will get Floor plan layout with furniture placement in 2D, Detail Dimensions, Stairs Dimensions, and Floor to ceiling height and Wall Thickness.
House Includes –
This House is built in G + 1
Ground floor –
- Staircase – External
- Parking – Car
- Drawing Room – 01
- Bedroom – 02
- Kitchen – 01
- Dining area – 01
- Utility area – 01
- Toilet – 02
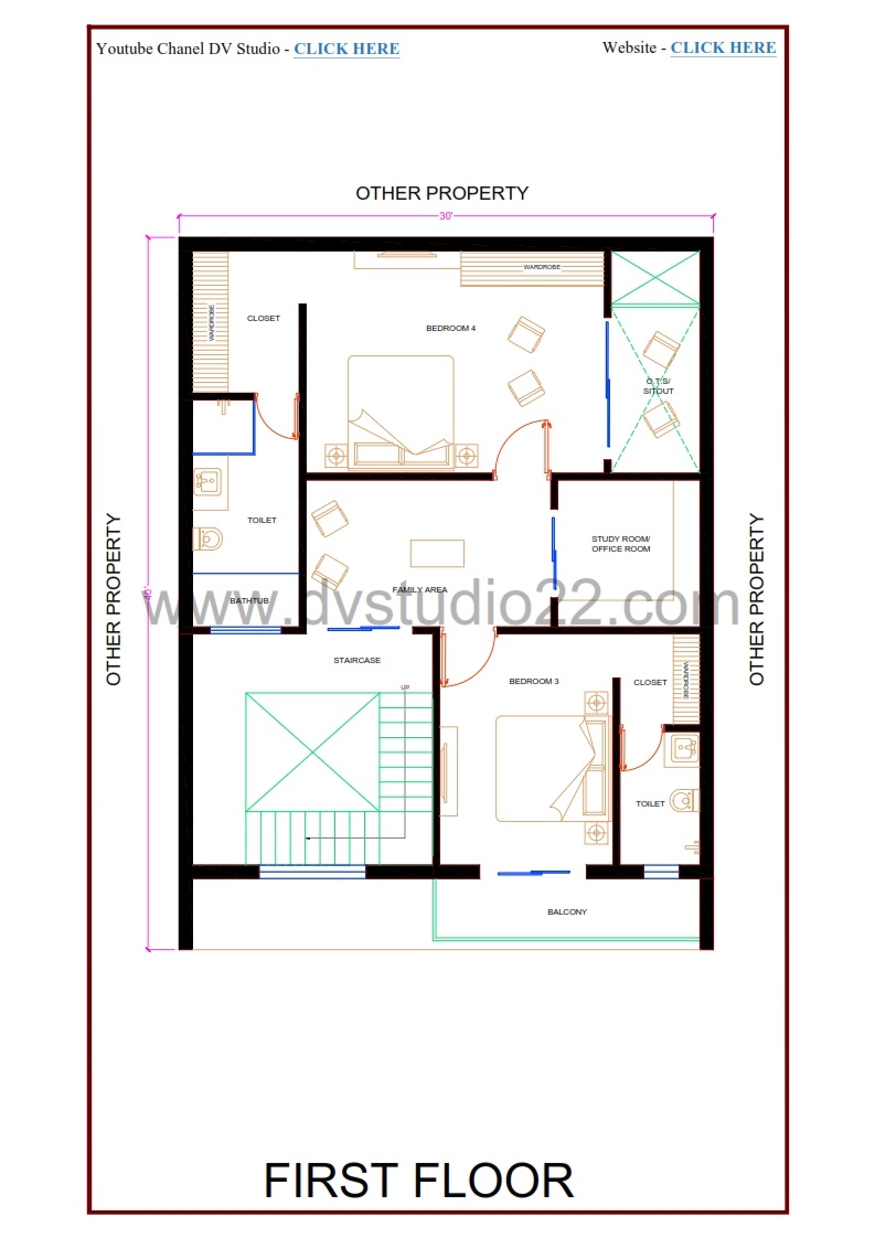
First floor –
- Staircase – External
- Bedroom – 02
- O.T.S – 01
- Study / Office – 01
- Toilet – 02






